

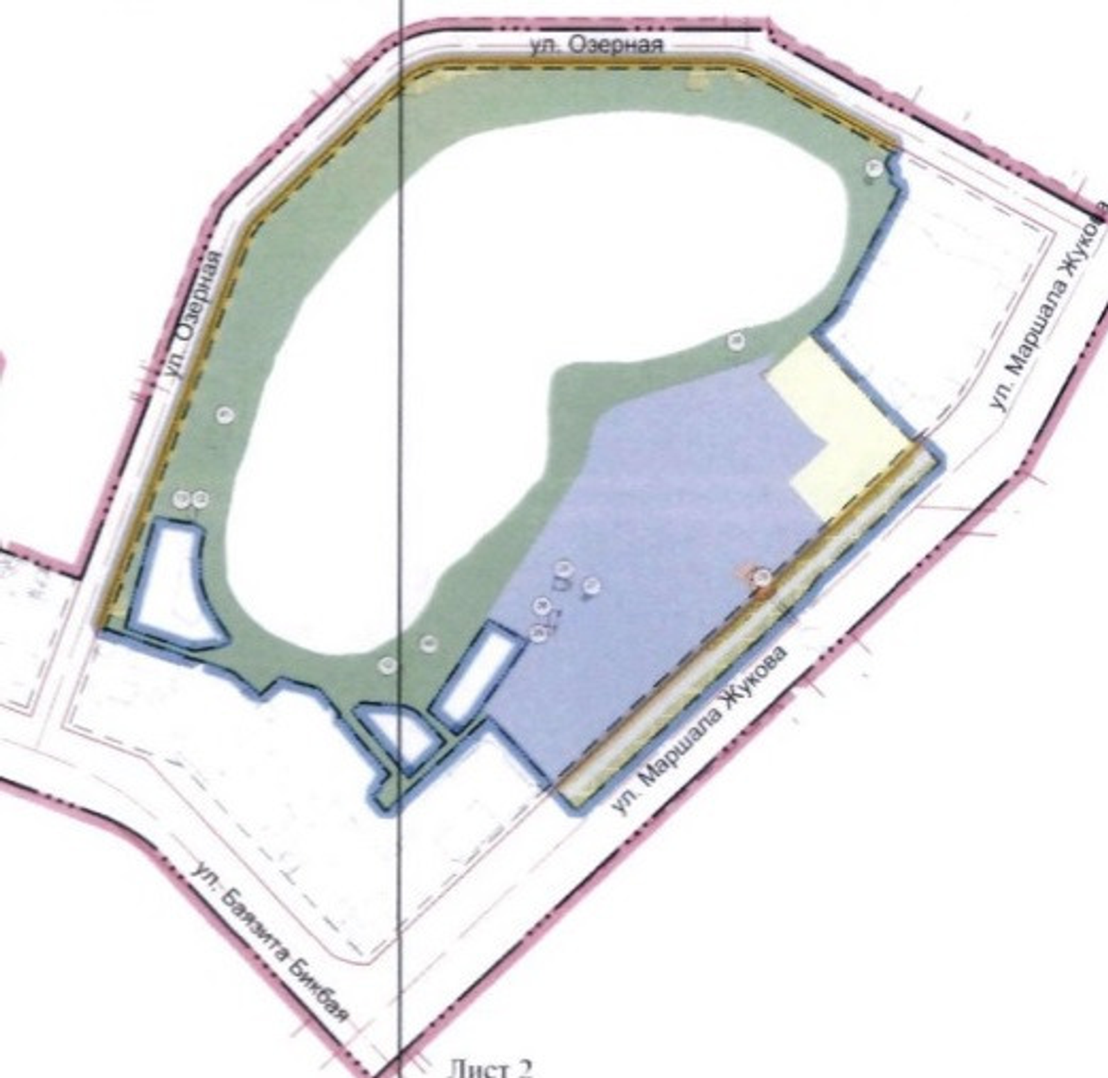
В Уфе внесли изменения в проект планировки территории, ограниченной улицами Маршала Жукова, Баязита Бикбая, Сипайловская, Озерная и Косогорная в микрорайоне Сипайлово у озера Кашкадан. Соответствующее постановление опубликовано на сайте администрации города.
Проектом внесения изменений предусмотрена корректировка красной линии по улице Маршала Жукова с целью включения существующего 3-х этажного надземного пешеходного перехода в границы территории квартала. Новый проект также предполагает снос нестационарных объектов общей площадью 476 квадратных метров и размещение планируемой подземной канализационно-насосной станции. Проектом межевания исключены границы водного объекта озера Кашкадан для приведения в соответствие с действующим законодательством. В постановлении уточняется, что на территории проектирования не планируется строительство новых капитальных объектов, в том числе жилья.
Ранее сообщалось, что в Уфе дано разрешение на проектирование нового квартала в пойме рек Белая и Уфа.
© 1992-2026 АО ИА «Башинформ».
Сетевое издание «Информационное агентство «Башинформ» зарегистрировано в Федеральной службе по надзору в сфере связи, информационных технологий и массовых коммуникаций (Роскомнадзор), регистрационный номер Эл № ФС77-88040
Учредитель Акционерное общество "Информационное агентство "Башинформ"
Главный редактор Шарафутдинов Руслан Михайлович
При перепечатке или цитировании ссылка на ИА «Башинформ» обязательна. Для интернет-изданий и социальных сетей прямая активная гиперссылка обязательна. Использование логотипа ИА «Башинформ» в целях, не связанных с ссылкой на агентство при перепечатке или цитировании, допускается только с письменного разрешения АО ИА «Башинформ».
Вся информация и материалы, размещенные на сайте www.bashinform.ru защищены международным и российским законодательством об авторском праве и смежных правах. 18+ запрещено для детей.